5816 Aspen Wood Court, Mclean, VA
Project Details
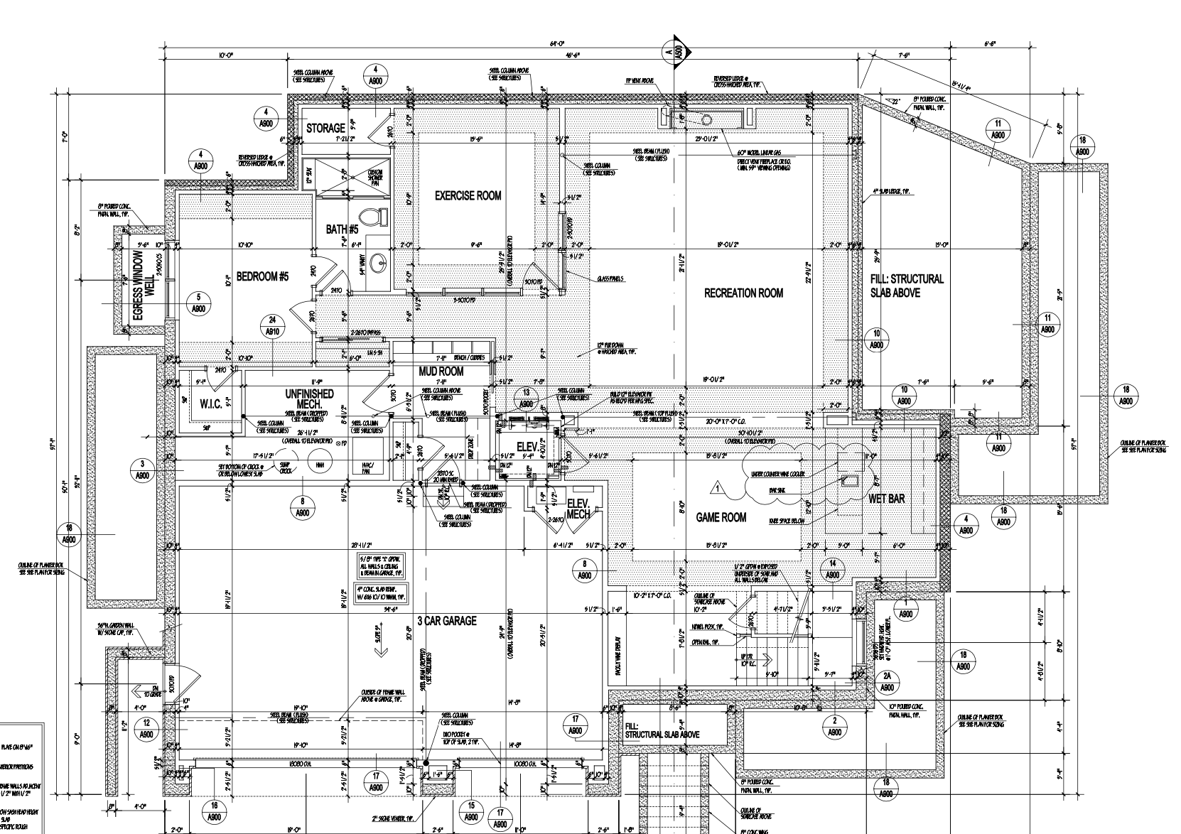
Location: 5816 Aspen Wood Court, Mclean, VA
Size: Modern Single House
Type: New Construction-5BR/5BA/ Luxury Single House
Status: Under Construction
Total Development Value: $4,300,000
Quality:
The units will be self-contained and finishes will be upper level quality. The House will contain an individual HVAC unit, tankless water heater and stacked washer and dryer unit. Flooring will consist of hardwood finished in place with alternate flooring consisting of European tile installed in the bathrooms. Kitchens and bathrooms will consist of upper level cabinetry and vanities (baths). Kitchen appliances will consist of upper mid-level stainless steel appliances (dishwasher, refrigerator, range/oven, and microhood as well as upper level kitchen and bath fixtures. Countertops will be solid-surface (granite, quartz or equivalent). Wall tile and backsplashes for each unit will be high-end stone or equivalent. Kitchen and bathrooms will consist of European tiles. The building will be equipped with a full sprinkler system and smoke detectors. The units will also be equipped with an alarm and intercom system and will be separately metered for electricity. The exterior walls of the building are brick, the roof surface is will be a composite material, and gutters and downspouts will be metal or vinyl. The units will contain insulated front glass entry doors. Windows will be a combination of vinyl double-hung, casement and fixed, insulated glass with screens.
Category: General Construction



































0 comments
Write a comment