2903 - 2905 Branch Ave SE, Washington, DC 20020
Project Details
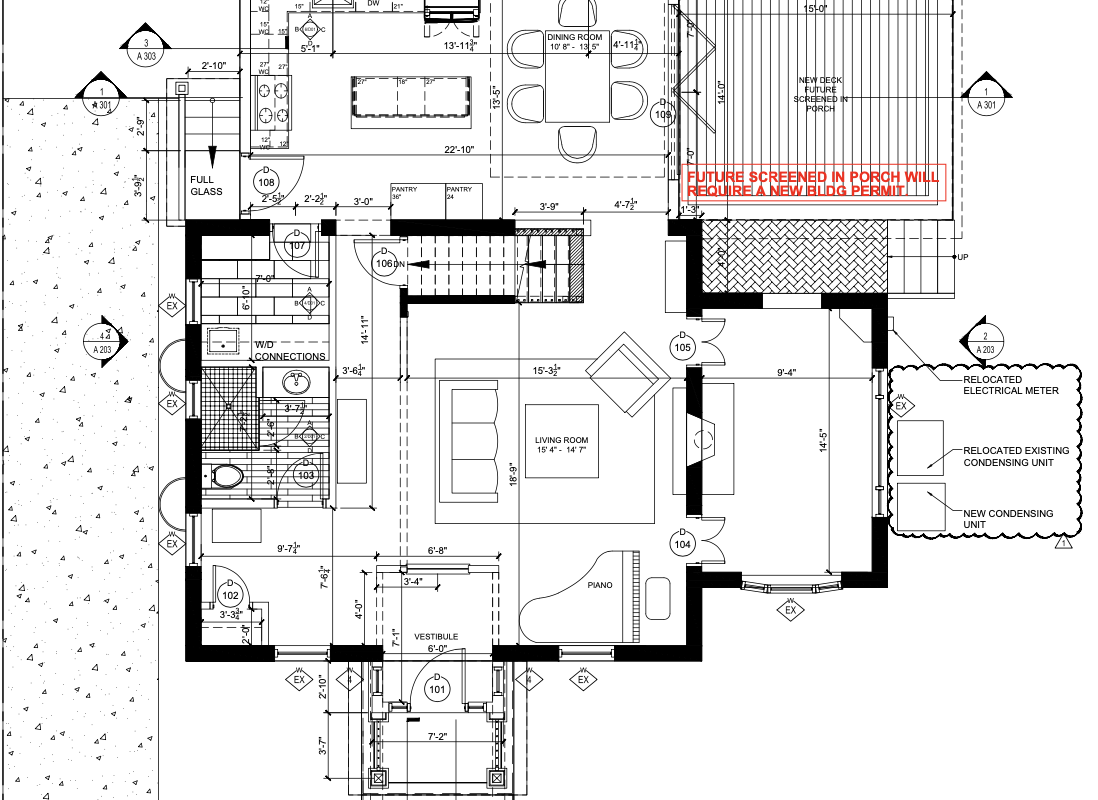
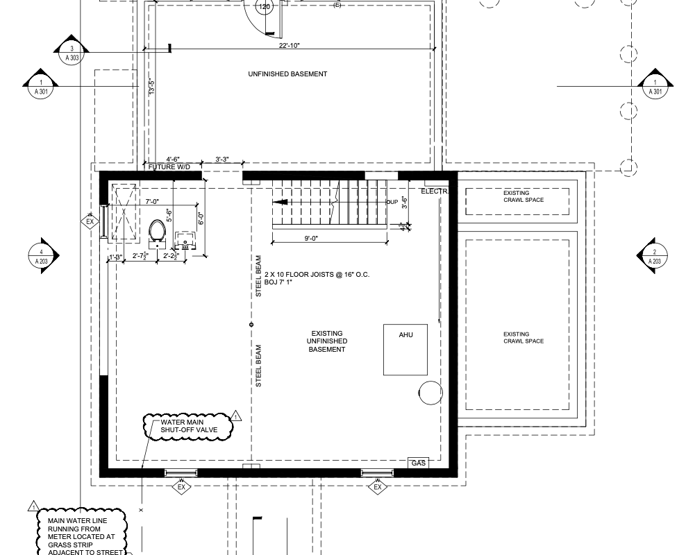
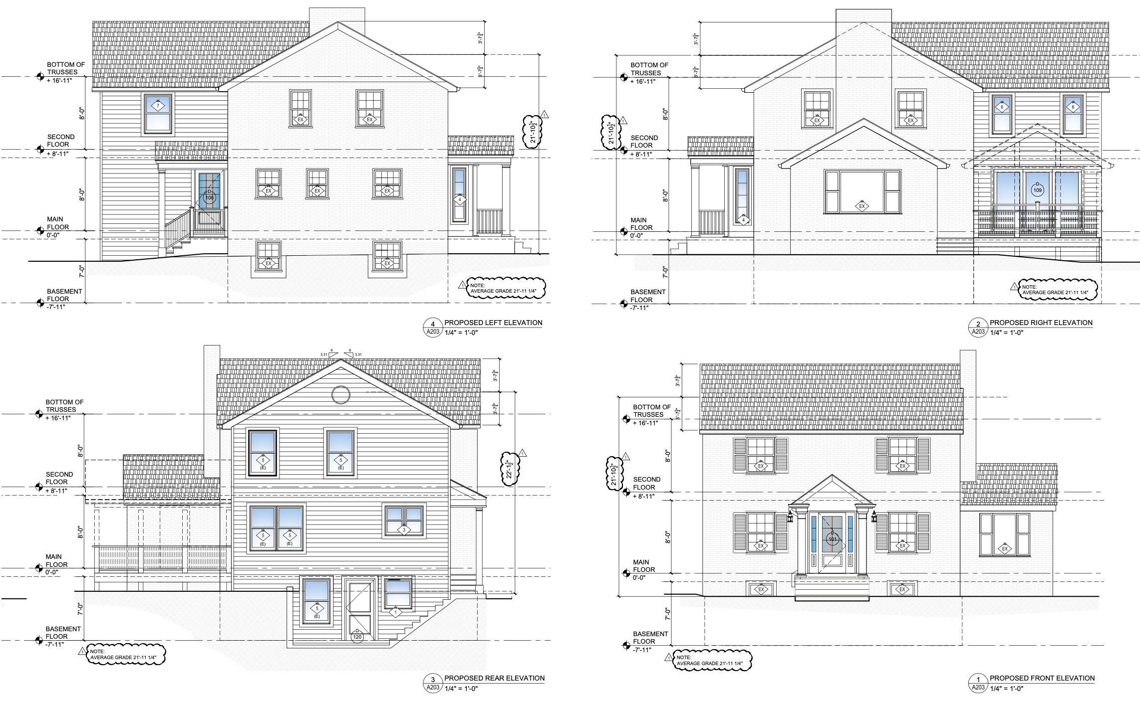
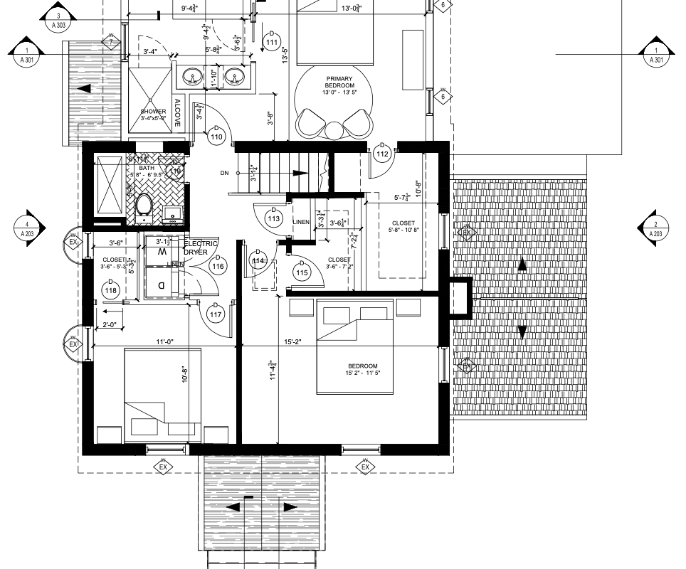
Location: 509 N Oxford St, Arlington VA
Size: Single Home
Type: Renovation & Addition -2BR/2BA/Luxury House
Status: January 2026
Total Construction Value: $600,000
Overview
Category: Remodeling Projects









0 comments
Write a comment