1850 Capitol Ave NE, Washington, DC 20002
Project Details
Altitude – Sophisticated urban living
Location: 1850 Capitol Ave NE, Washington, DC 20002
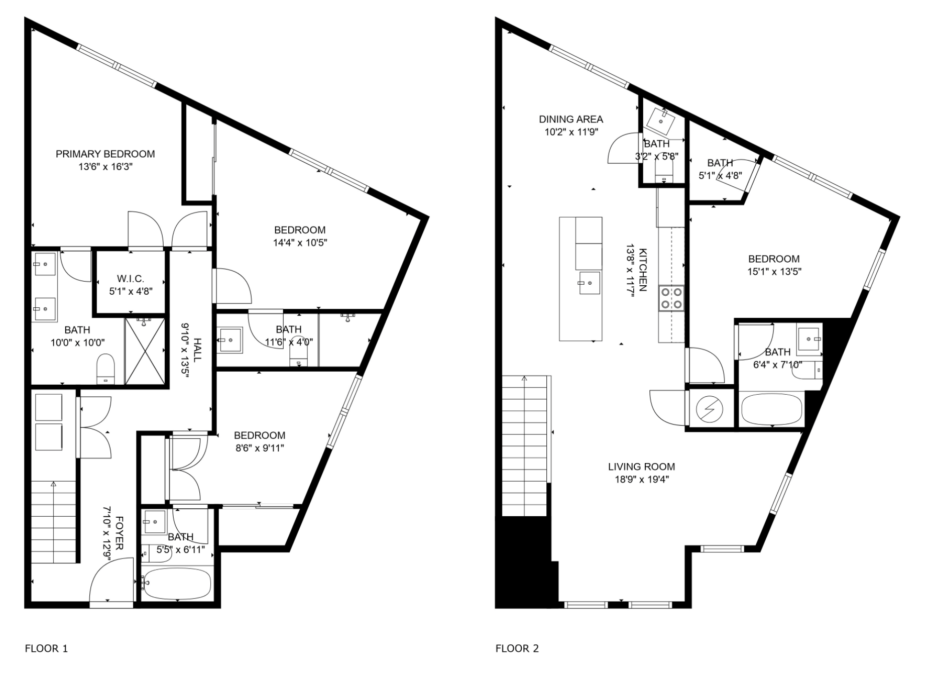
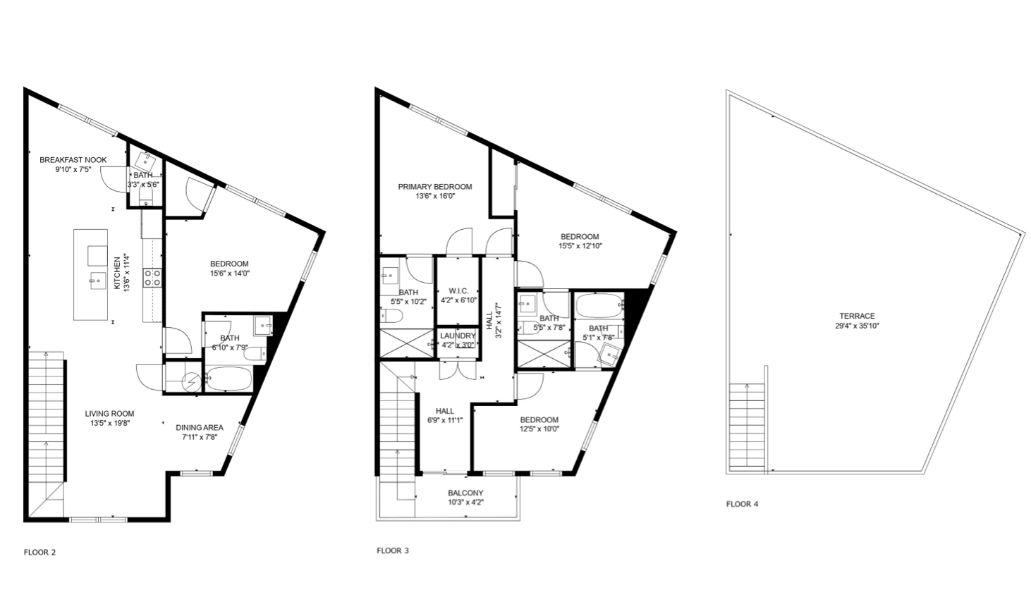
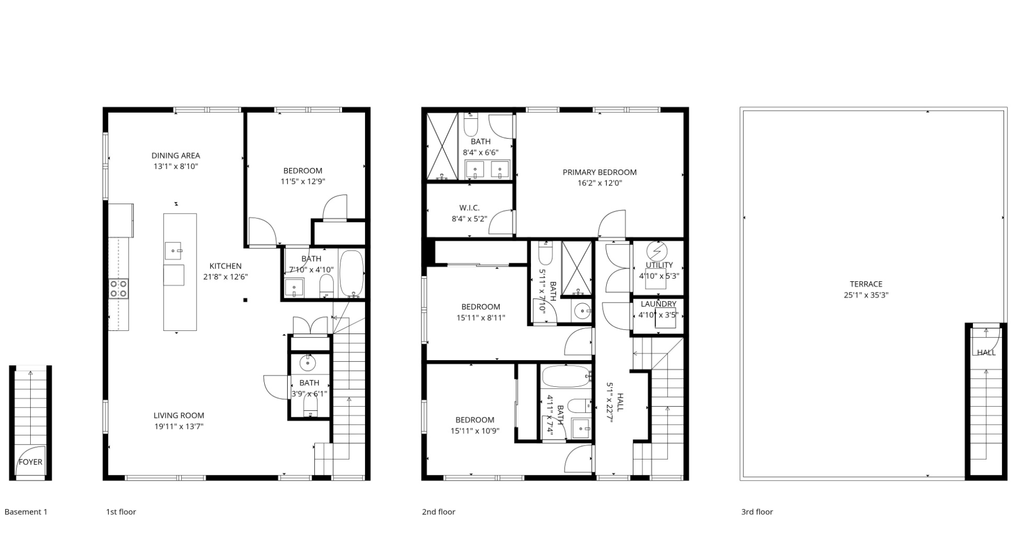
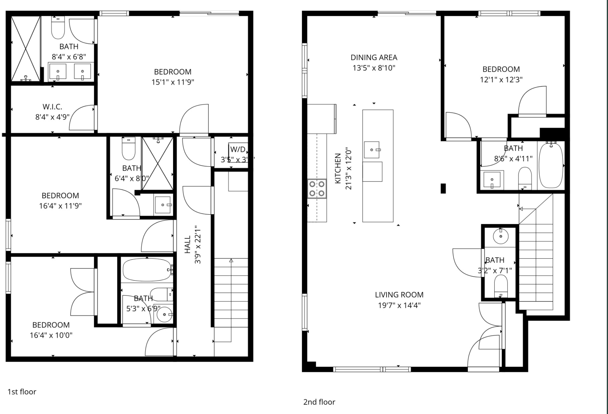
Size: 4 Modern Multi Unit Condos
Type: New Construction-2BR/2BA/Lofts Luxury Apartments
Status: On the market
Total Development Value: $3,200,000
Overview
Altitude situated right between the highly trafficked New York and West Virginia, Avenues, just a mile away from Union Market, and right around the corner from City Winery, Ivy City, Smokehouse, Other Half Brewing, Throw Social, and Atlas Brew Works, as well as MOM’s Organic Market and Target.
The neighborhood has good accessibility, with various primary streets and avenues for vehicular traffic providing convenient access to the central business district.
Category: Development Projects








































